
Freedom Enterprise oversees the demolition, modification, and installation of stadium and various venue seating. Our skilled staff ensures the quality construction and installation of the entire seating package, including new foundations, I-Beam construction, installation of new seating systems, press boxes and other specialty venue seating. Freedom is an approved installation contractor for Southern Bleacher, Alto Seating, and Irwin Telescopic, as well as experienced in various other seating and stadium packages.
ANNOUNCING: Freedom Enterprise is now the US distributor of Pakar Seatings & Stadium Seats.
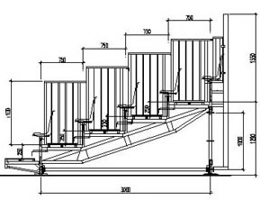
Pakar Seating is internationally renowned for its grandstand designs, especially in the Permanent and Temporary Grandstand System.
With more than 20 years experience in this industry, Pakar is committed to delivering great value with superior quality for our clients. Pakar ensures a complete and successful implementation of every Pakar Grandstand Systems while delivering cost-effective solutions which complies with international Standards. The company’s extensive experience in the European, Asian, American and African markets enables us to provide our clients with the best solutions of design for the Grandstands.
Pakar was involved in many high profile International Events such as:
-Summer Olympic Games in Sydney, Australia 2000
-Winter Olympic Games in Salt Lake City, USA 2002
-Summer Olympic Games in Athens, Greece 2004
-Asian games in Doha, Qatar 2006
-Olympic Games in Beijing, China 2008
These references are based on solid engineering for comprehensive, cost-effective solutions on years of commitment and innovation. A sensitivity to other cultures and market has resulted in many years of successful business worldwide.
Contact Al Seiberlich: T: 215.542.2250 ext.161 |
information@feigc.com